WORKS
logo设计 / ip形象 / vi系统设计
创意插画 / 包装设计&落地执行
画册 / 宣传册设计
商业空间 / 导视设计 /改造项目
ABOUT
CLIENT
NEWS
CONTACT
WORKS
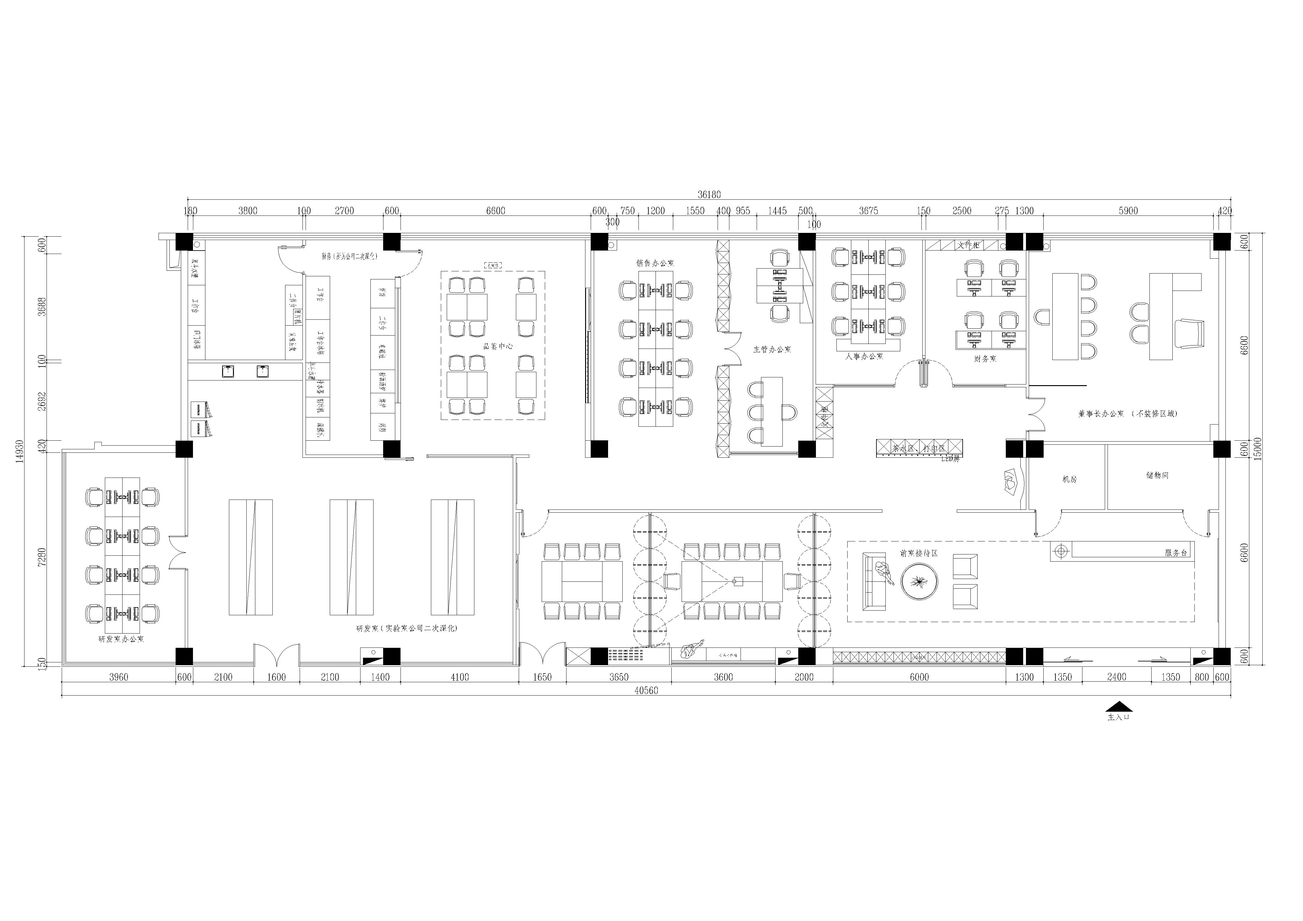
卓典食品办公空间设计
商业空间 / 导视设计 /改造项目
Share on
OTHER WORKS
美浮宫自助餐厅空间设计
虾尊蟹霸 | 餐饮连锁空间设计
崇明农资超市|空间设计
启茶 | 饮品logo、空间设计
杰正集团 | 办公空间设计
卓典食品办公空间设计